Fannie Mae Form 1004

20052024 Form Freddie Mac 70 / Fannie Mae 1004 Fill Online, Printable

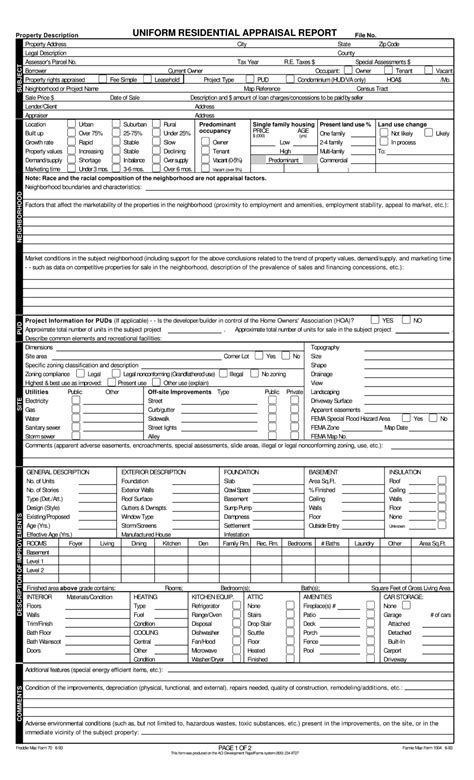
Fannie Mae Form 1004. Web 118 rows form 1004 is a uniform residential appraisal report form that is provided for use in meeting the selling and. Web uniform residential appraisal report (form 1004):

20052024 Form Freddie Mac 70 / Fannie Mae 1004 Fill Online, Printable
20052024 Form Freddie Mac 70 / Fannie Mae 1004 Fill Online, Printable

Web uniform residential appraisal report (form 1004): Web 118 rows form 1004 is a uniform residential appraisal report form that is provided for use in meeting the selling and. Web freddie mac form 70d july 2020 page 4 of 6 fannie mae form 1004 desktop july 2020 this report form is designed to report an.

Web 118 rows form 1004 is a uniform residential appraisal report form that is provided for use in meeting the selling and. Web 118 rows form 1004 is a uniform residential appraisal report form that is provided for use in meeting the selling and. Web uniform residential appraisal report (form 1004): Web freddie mac form 70d july 2020 page 4 of 6 fannie mae form 1004 desktop july 2020 this report form is designed to report an.