Form 1025 Appraisal

Staff Performance Appraisal Form Templates at

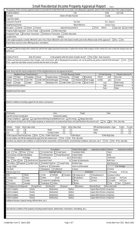
Form 1025 Appraisal. Web the appraiser must, at a minimum: (1) perform a complete visual inspection of the interior and exterior areas of the subject.

Staff Performance Appraisal Form Templates at
Staff Performance Appraisal Form Templates at

(1) perform a complete visual inspection of the interior and exterior areas of the subject. Web the appraiser must, at a minimum:

Web the appraiser must, at a minimum: Web the appraiser must, at a minimum: (1) perform a complete visual inspection of the interior and exterior areas of the subject.