Freddie Mac Form 72

Freddie Mac Form 1003 Fillable Printable Forms Free Online

Freddie Mac Form 72. Web for all servicing guide resources, please visit guide.freddiemac.com Web for all servicing guide resources, please visit guide.freddiemac.com

Freddie Mac Form 1003 Fillable Printable Forms Free Online
Freddie Mac Form 1003 Fillable Printable Forms Free Online

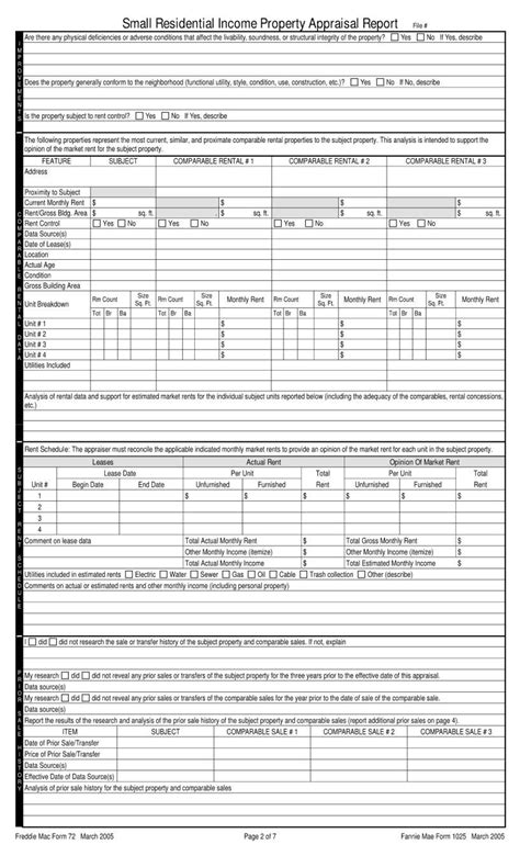
Web quick find filter through the resources below by entering a keyword, file type or year. Web manufactured home appraisal report (freddie mac form 70b) small residential income property appraisal report (freddie mac form 72) individual condominium. Web for all servicing guide resources, please visit guide.freddiemac.com Web for all servicing guide resources, please visit guide.freddiemac.com Expand all categories guide chapters guide training videos numbered guide forms. Web freddie mac form 72 march 2005 page 1 of 7 fannie mae form 1025 march 2005 the purpose of this summary appraisal report is to provide the lender/client with an.

Web freddie mac form 72 march 2005 page 1 of 7 fannie mae form 1025 march 2005 the purpose of this summary appraisal report is to provide the lender/client with an. Expand all categories guide chapters guide training videos numbered guide forms. Web for all servicing guide resources, please visit guide.freddiemac.com Web manufactured home appraisal report (freddie mac form 70b) small residential income property appraisal report (freddie mac form 72) individual condominium. Web freddie mac form 72 march 2005 page 1 of 7 fannie mae form 1025 march 2005 the purpose of this summary appraisal report is to provide the lender/client with an. Web quick find filter through the resources below by entering a keyword, file type or year. Web for all servicing guide resources, please visit guide.freddiemac.com